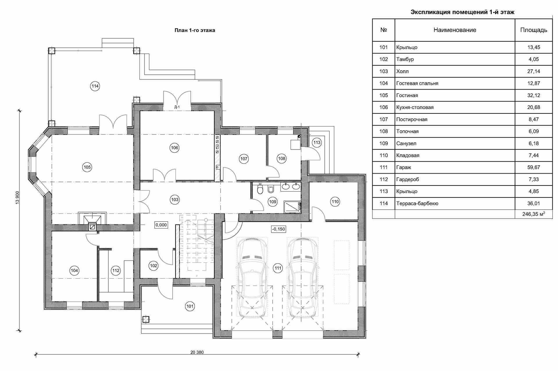
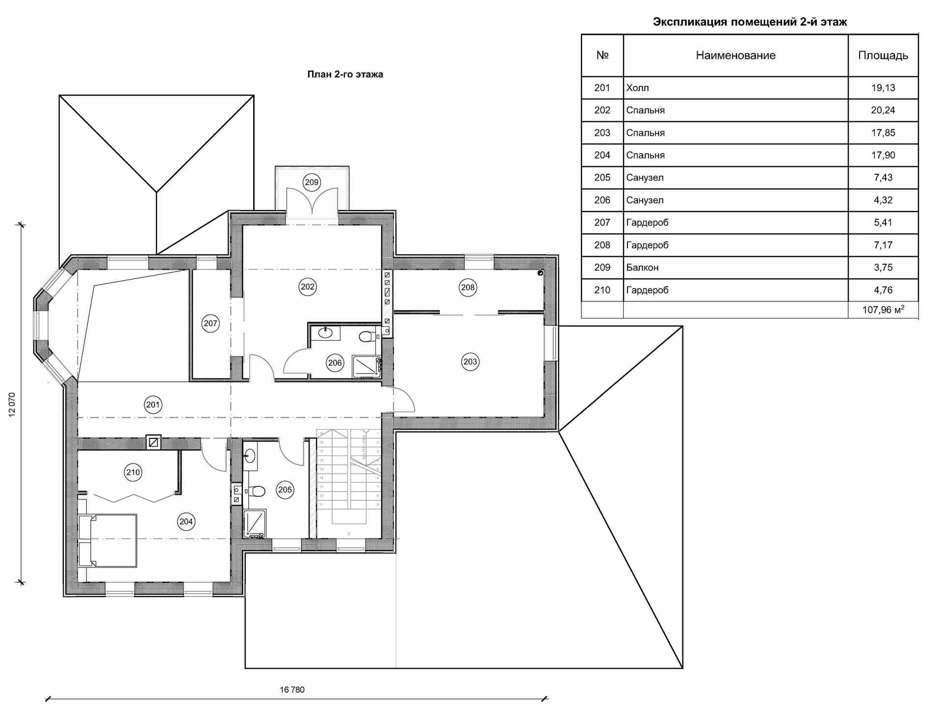
| Общая площадь: | 480 м2 |
| Длина: | 13,9 м2 |
| Ширина: | 20,4 м2 |
| Возможный материал стен: | газобетон | пеноблок, кирпич, керамические блоки |
| Возможный материал кровли: | металлочерепица, гибкая черепица, керамическая черепица, композитная черепица, цементно-песчаная черепица |
| Тип перекрытий: | по деревянным балкам, монолитное ж/б, плиты ПК |
| Количество этажей: | 2 |
| Подвал / мансарда: | мансарда |
| Гараж: | 2 авто |
| Наличие террасы: | Да |
| Количество жилых комнат: | 6+ |
| Количество спален: | 4 |
| Количество санузлов: | 3 |
| Дом с камином: | Да |
| Дом с сауной: | Нет |
| Дом с бассейном: | Нет |
| Проект бани: | Нет |
Свяжитесь с нами...